最終更新日: 2022年1月21日
| ※ 旧長南小学校の跡地活用企業は、決定しました。 |
![]() |
![]() |
![]() |
![]() |
![]() |
![]() |
![]() |
|
![]() |
![]() |
![]() |
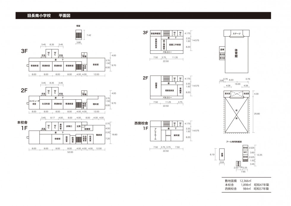
| 物 件 情 報 | |||
| 名称 | 旧長南小学校 | ||
| 所在 | 長生郡長南町長南770-1 【地図を表示(Google Map)】 | ||
| 最寄駅・
アクセス |
JR外房線茂原駅よりバス20分
圏央道茂原長南インターから7分 |
||
| 敷地面積 | 12,366㎡ | 建物面積 | 本校舎 1,898㎡
西側校舎 984㎡ 体育館 523㎡ |
| 築年数 | 本校舎 昭和47年築
西側校舎 昭和57年築 体育館 昭和53年築 |
修繕の必要性 | なし |
| 地目 | 学校用地 | 用途地域 | 指定なし |
| 物件種類 | 小学校 | 利用方法 | 賃貸・譲渡(協議による) |
| 設 備 等 | |||
| 現況 | 平成29年3月まで使用 | 駐車場 | 有(約20台分) |
| ガス | 町営ガス | インターネット | 工事不要(NTTフレッツ光提供エリア) |
| 水道 | 上水道 | 下水道 | 合併処理浄化槽 |
| 物件紹介 | ・平成29年3月まで小学校として使用していた3階建て物件。
・校舎、体育館ともに耐震基準に適合。 ・圏央道茂原長南ICから自家用車で約7分、JR外房線茂原駅からバスで約20分、圏央道~アクアライン利用で東京駅、羽田空港、成田空港ともに約1時間の好立地。(東京駅、羽田空港は高速バスあり) ・地域住民による草刈りなど、定期的に環境美化作業を実施しており保存状態は良好。 ・商店街や保育所に近接しており、地域交流の場に最適。 ・部屋数が多く、様々な業種に対応可能。 ・地域活性化に資する活用方法を希望。 ・ガス料金は町営ガス事業を営んでおり、安さは日本トップクラス。 |
||
| 問い合わせ窓口 | 長南町企画政策課
電話番号 0475-46-2113 E-mail:kikaku@town.chonan.lg.jp |
||

国土地理院撮影の空中写真(2006年撮影)

PDFダウンロード(kyu_chonan_zenkei.pdf)

PDFダウンロード(kyu_chonan_heimen.pdf)